Scheda immobile:

Negozio - Vendita 194 mq.

Varese

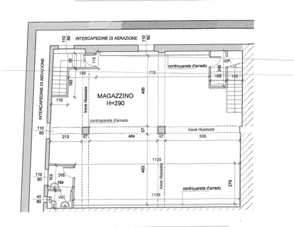
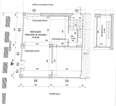
Locale commerciale in vendita a Varese, Via Cavour 6, in una posizione strategica, a pochi passi dalla zona pedonale e su una strada di intenso passaggio. Questo ampio negozio, con una superficie di circa 200 mq commerciali, è ideale per svariate attività commerciali. Le ampie vetrine, di cui due frontali e due laterali, garantiscono un'ottima visibilità. L'immobile si sviluppa su due livelli, offrendo al piano terra ambienti spaziosi e funzionali, mentre al piano S1 troviamo un comodo magazzino con un'altezza di 2.90 metri. Questo locale dispone di riscaldamento autonomo e aria condizionata, assicurando un ambiente accogliente e professionale. La facciata lineare rende l'ingresso imponente e accattivante. Internamente, è dotato di due stanze principali e un bagno, alcuni dei quali adattati per persone con disabilità, garantendo accessibilità e comfort per tutti i clienti. Non lasciarti sfuggire questa rara opportunità di investire in una delle zone più dinamiche di Varese. Contattaci per maggiori informazioni e per organizzare una visita.


mq. 194
Riscaldamento: autonomo
Classe energetica: G

400.000,00€


Non divulgheremo il tuo indirizzo a nessun altro.
Autorizzo al trattamento dei dati per la richiesta in oggetto. Consenso esplicito secondo il D.Lgs 196/2003. privacy policy