Scheda immobile:

Appartamento - Vendita 119 mq.

Varese

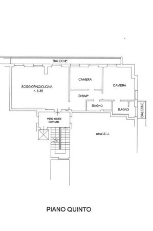
Situato al quinto piano di un elegante edificio dei primi anni '60 dotato di ascensore, questo appartamento offre interni spaziosi e ben vissuti, perfetti per chi cerca comfort e praticità. La proprietà completamente ristrutturata nel 2025 si compone di un ingresso che si apre direttamente sull'ampio soggiorno con cucina a vista, due camere da letto, due bagni con box doccia (di cui uno finestrato e dotato di balcone), e un disimpegno che collega tutti gli ambienti. Il punto forte di questo appartamento è il balcone spazioso che unisce tutte le stanze, creando un'area esterna ideale per rilassarsi o intrattenere ospiti con splendida vista sui monti. Inoltre, la presenza di un comodo box singolo e di una cantina aggiunge un ulteriore valore alla proprietà. L'appartamento è una soluzione ottimale per chi desidera avere tutti i servizi a portata di mano, grazie alla sua posizione centrale a pochi passi dalla nuova e riqualificata zona stazioni. Questo appartamento rappresenta una scelta intelligente per chi cerca un'abitazione confortevole e ben posizionata, frutto di un'accurata ristrutturazione che ha coinvolto anche gli impianti. Non perdere l'opportunità di visitare questa splendida proprietà nel cuore della città!


mq. 119
Piano 5
Camere da letto: 2
Bagni: 2
Box auto: 1
Riscaldamento: centralizzato
Classe energetica: E

230.000,00€


Non divulgheremo il tuo indirizzo a nessun altro.
Autorizzo al trattamento dei dati per la richiesta in oggetto. Consenso esplicito secondo il D.Lgs 196/2003. privacy policy